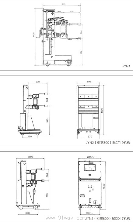
1、概述
ZN28-12C型戶內高壓手車式真空斷路器(以下簡稱斷路器)系三相交流50Hz的戶內裝置,配有直流電磁操動機構或彈簧操動機構,作為KYN1-12型及JYN2-12型戶內交流金屬移開式開關設備之配用斷路器,適用于額定電壓12kV及以下的供配電系統。供工礦企業、發電廠及變電站等作電氣設施的控制或保護開關,尤其適用于頻繁操作的場所。
2、正常使用條件
a)周圍空氣溫度:不超過40℃,且在24h內測的平均值不超過35℃;最低周圍空氣溫度為-10℃;
b)海拔:不超過1000m;
c)周圍空氣沒有明顯地受到塵埃、煙、腐蝕性和可燃性氣體、蒸氣及鹽霧的污染;
d)相對濕度:日平均值不超過95%,月平均值不超過+90%;水蒸氣壓力日平均值不超過2.2kPa,月平均值不超過1.8kPa;在高濕度期間內,溫度急降,可能會有凝露;
e)超出以上條件的要求,由用戶同制造單位協定。
3、ZN28-12C系列戶內高壓真空斷路器主要技術參數:
| 序號 |
參數名稱 |
單位 |
數據 |
| 20kA |
25kA |
31.5kA |
| 1 |
額定電壓 |
kV |
12 |
| 2 |
額定頻率 |
Hz |
50 |
| 3 |
額定電流 |
A |
630、1250 |
630、1250、1600 |
1250、1600、2000 |
| 4 |
額定短路開斷電流 |
kA |
20 |
25 |
31.5 |
| 5 |
額定短路開斷電流開斷次數 |
次 |
30 |
| 6 |
額定短路關合電流(峰值) |
kA |
50 |
63 |
80 |
| 7 |
額定動穩定電流 |
50 |
63 |
80 |
| 8 |
額定熱穩定電流 |
20 |
25 |
31.5 |
| 9 |
額定熱穩定時間 |
s |
4 |
| 10 |
合閘時間 |
≤0.2 |
| 11 |
分閘時間 |
≤0.06 |
| 12 |
1min工頻耐壓 |
kV |
42 |
| 13 |
雷電沖擊耐壓(峰值) |
75 |
| 14 |
額定單個電容器組開斷電流 |
A |
630 |
| 15 |
額定背靠背電容器組開斷電流 |
400 |
| 16 |
機械壽命 |
次 |
10000 |
| 17 |
額定操作順序 |
|
0-0.3s-CO-180s-0 |
| 18 |
配用操作機構 |
|
CY17Ⅰ、CT19Ⅰ |
CY17Ⅱ、CT19Ⅱ |
| 19 |
操作機構合、分閘線圈額定操作電壓 |
V |
CD17:DC110、DC220 CT19:AC110、AC220、AC380、DC48、DC110、DC220 |
| 20 |
觸頭開距 |
mm |
11±1 |
| 21 |
超行程 |
4±1 |
| 22 |
觸頭允許磨損累計厚度 |
3 |
| 23 |
平均合閘速度 |
ms |
0.6±0.2 |
| 24 |
平均分閘速度 |
m/s |
1.0±0.3 |
1.0±0.2 |
| 25 |
三個合、分閘同期性 |
ms |
≤2 |
| 26 |
觸頭合閘彈跳時間 |
≤2 |
| 27 |
油緩沖器行程 |
mm |
100+0.5 |

ZN28-12C系列戶內高壓真空斷路器